K4-0037 丹後町中浜 売家(木造3階建)
| 所在地 | 京都府京丹後市丹後町中浜 |
|---|---|
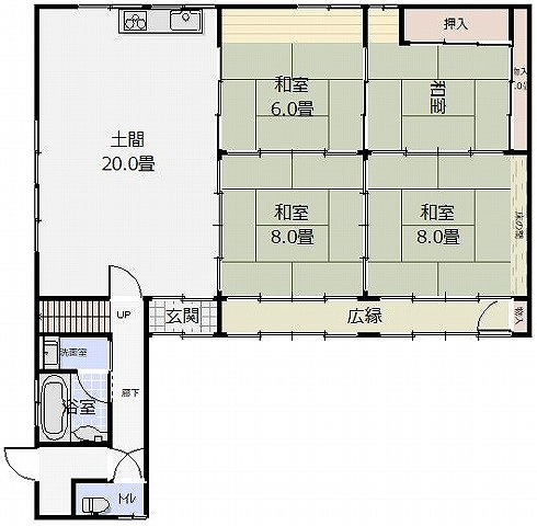
| 間取り | 4K |
| 価格 | 390万円(2026年2月27日に490万円から値下げしました) |
| 土地面積 | 33.05㎡ |
| 建物面積 | 1階34.31㎡ 2階34.31㎡ 3階22.32㎡ |
| 地目 | 宅地 |
| 交通 | 丹海バス「中浜」バス停より徒歩3分 |
漁村には珍しい木造3階建ての比較的綺麗な物件です。釣り・海岸散歩に最適!近くには海水浴所・オートキャンプ場・渡船も有り。
物件詳細情報
| 取引態様 | 仲介 | 現況 | 空室 |
|---|---|---|---|
| 土地権利 | 所有権 | 引渡可能年月 | 即日 |
| 地勢 | 平坦 | 引渡条件 | 現状有姿 |
| 私道負担 | なし | 接道状況 | 南側:市道 久僧中浜線(幅員4.6m)に接道、東側:市道 久僧中浜上道線(幅員3.1m)に接道 |
| 建物構造 | 木造瓦葺3階建 | 間口 | 南東側共に約6m |
| 建物面積 | 1階34.31㎡ 2階34.31㎡ 3階22.32㎡ | 駐車場 | 無し 近隣駐車場1台2,000円/月(アスファルト舗装) |
| 建築年月 | 昭和42年7月8日新築 | 上水道 | 公共上水 |
| 都市計画 | 区域外 | 下水道 | 下水接続不可(市浄化槽設置エリアですが浄化槽を埋設するスペース無し) |
| 用途地域 | 指定なし | 給湯 | ガス給湯器 |
| 交通 | 丹海バス「中浜」バス停より徒歩3分 | その他設備 | 簡易水洗トイレ(汲み取り) |
| 建ぺい率 | 指定なし | その他施設負担金 | なし |
| 容積率 | 指定なし | 備考 | 下水接続不可(市浄化槽設置エリアですが浄化槽を埋設するスペース無し) ※2026年2月27日に490万円から値下げしました |
| 学区 | 宇川小学校・丹後中学校 | 情報更新日 | 2026年02月27日 |
| その他の制限 | なし | 次回更新予定日 | 2026年03月13日 |
| 特記事項 |
地図
この物件にご興味のある方は






































