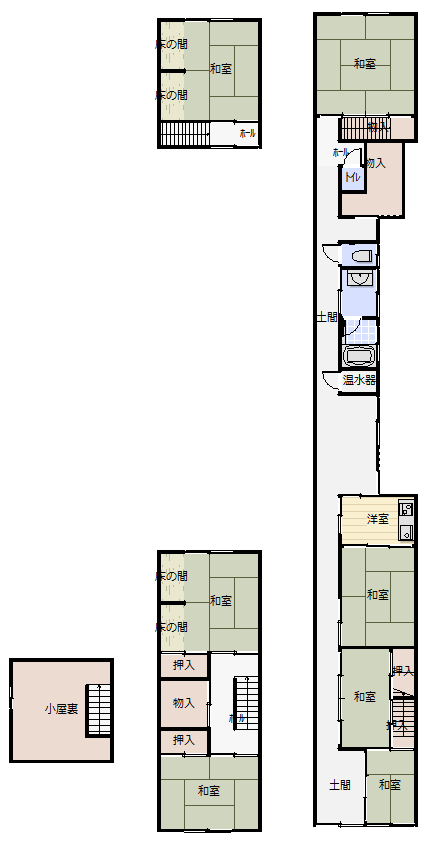
K2-0077 京丹後市久美浜町 細なが〜い売家(リフォーム済み)
| 所在地 | 京丹後市久美浜町小字東本町 |
|---|---|
| 間取り | 7K |
| 価格 | 880万円 |
| 土地面積 | 109.09㎡(32.99坪) |
| 建物面積 | 1階97.04㎡ 2階55.55㎡ |
| 地目 | 宅地 |
| 交通 | 久美浜駅より徒歩9分 |
鰻の寝床と言われる奥に長なが〜い住宅です。久美浜町の中心地にある、リフォーム済みの綺麗な一軒家になります。道路側の一部を店舗などにするのも良いかも知れません。
物件詳細情報
| 取引態様 | 仲介 | 現況 | 空き家 |
|---|---|---|---|
| 土地権利 | 所有権 | 引渡可能年月 | 要相談 |
| 地勢 | 平坦 | 引渡条件 | 現状有姿 |
| 私道負担 | 無し | 接道状況 | 北側府道に接道 |
| 建物構造 | 木造瓦葺2階建 | 間口 | 約3.6m |
| 建物面積 | 1階97.04㎡ 2階55.55㎡ | 駐車場 | 無し(200m以内にご紹介出来る車庫・駐車場がございます。) |
| 建築年月 | 昭和63年11月 | 上水道 | 市水道 |
| 都市計画 | 区域外 | 下水道 | 有り(未接続) |
| 用途地域 | 指定なし | 給湯 | 電気温水機 |
| 交通 | 久美浜駅より徒歩9分 | その他設備 | 汲み取り、エアコン3台(新品) キッチン・換気扇(新品) 畳(おおよそ新調・表替) |
| 建ぺい率 | 指定なし | その他施設負担金 | 特になし |
| 容積率 | 指定なし | 備考 | ・移住補助金(京丹後市90万円・京都府90万円・下水接続50万円)合計230万円 を活用できる可能性があります。 |
| 学区 | 久美浜小学校・久美浜中学校 | 情報更新日 | 2025年11月07日 |
| その他の制限 | 景観形成住民協定区域 | 次回更新予定日 | 2025年11月21日 |
| 特記事項 | ・洪水浸水想定区域:浸水深さ0.5~1.0m未満に該当します。 ・盛土規制法:宅地造成等工事規制区域に該当します。 |
地図
この物件にご興味のある方は


































































