2-7-003.宮津市 魚屋 売店舗(元病院)
| 所在地 | 宮津市魚屋 |
|---|---|
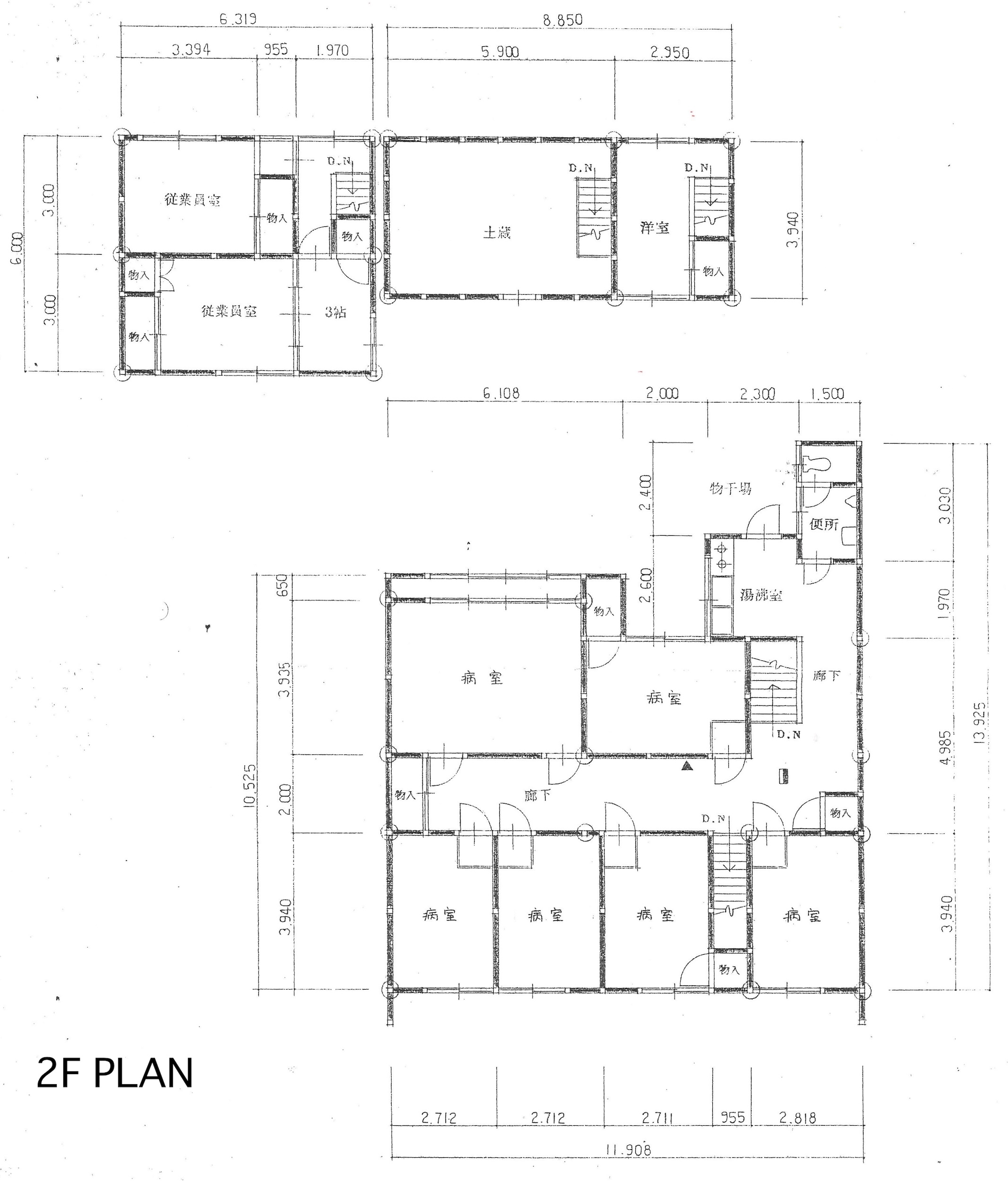
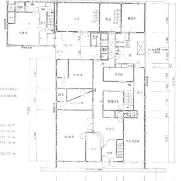
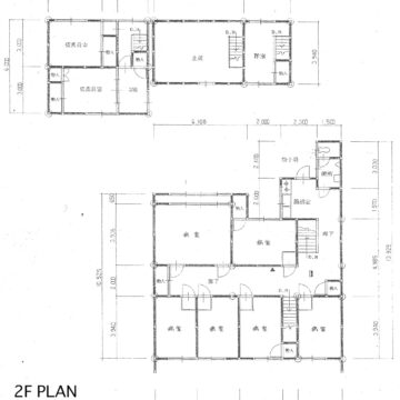
| 間取り | 平面図参照ください |
| 価格 | 1,600万円 |
| 土地面積 | 建物がある土地:306.76㎡(92.7坪)、駐車場の土地:241.32㎡(72.9坪) 合計548.08㎡(165.7坪) |
| 建物面積 | 木造瓦葺2階建て 258.17㎡、木造瓦葺平家建て 9.91㎡、土蔵造り瓦葺2階建 52.88㎡、木造瓦葺2階建て 84.29㎡ |
| 地目 | 建物がある土地:宅地、駐車場の土地:宅地 |
| 交通 | 京都丹後鉄道 宮津駅まで 徒歩10分、丹海バス「西堀川」バス停 徒歩3分 |
元病院だった建物で、10台程度ぐらいの駐車場付きの物件になります。大きな建物なので、一部を解体したうえで、宿泊施設や店舗などに、用途変更して、商業利用するのも良いかなと思います。
物件詳細情報
| 取引態様 | 仲介 | 現況 | 空き家 |
|---|---|---|---|
| 土地権利 | 所有権 | 引渡可能年月 | 要相談 |
| 地勢 | 平坦 | 引渡条件 | 現状有姿 |
| 私道負担 | なし | 接道状況 | 南側:市道に接道 |
| 建物構造 | A.木造瓦葺2階建て、B.木造瓦葺平家建て、C.土蔵造り瓦葺2階建、 D. 木造瓦葺2階建て | 間口 | 約12m |
| 建物面積 | 木造瓦葺2階建て 258.17㎡、木造瓦葺平家建て 9.91㎡、土蔵造り瓦葺2階建 52.88㎡、木造瓦葺2階建て 84.29㎡ | 駐車場 | 25mほど離れた場所に専用駐車場(10台程度駐車可能)があります。 |
| 建築年月 | 不明 | 上水道 | 引込済み |
| 都市計画 | 区域内 | 下水道 | 接続済み |
| 用途地域 | 商業地域 | 給湯 | ガス給湯 |
| 交通 | 京都丹後鉄道 宮津駅まで 徒歩10分、丹海バス「西堀川」バス停 徒歩3分 | その他設備 | 特になし |
| 建ぺい率 | 80% | その他施設負担金 | 特になし |
| 容積率 | 300% | 備考 | ・建物内の一部に雨漏りが確認されています。 |
| 学区 | 宮津小学校、宮津中学校 | 情報更新日 | 2025年10月31日 |
| その他の制限 | 特になし | 次回更新予定日 | 2025年11月14日 |
| 特記事項 | ・洪水浸水想定区域:浸水深さ0.5m未満 に該当します。 ・天橋立周辺地区景観まちづくり景観計画:市街地ゾーンに該当します。 ・盛土規制法:宅地造成等工事規制区域に該当します。 ・現状有姿となります。 |
地図
この物件にご興味のある方は




















































































































































































