2-1-001.宮津市 日ケ谷 売家
| 所在地 | 宮津市日ケ谷 |
|---|---|
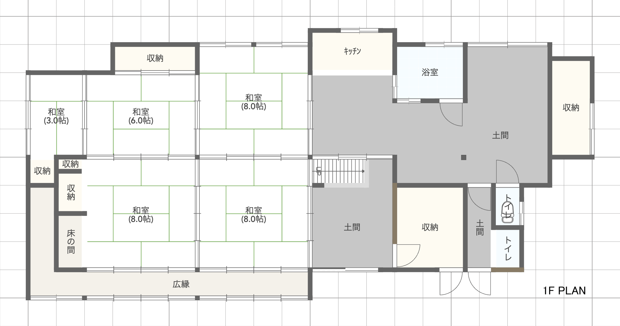
| 間取り | 5K |
| 価格 | 200万円 |
| 土地面積 | 224.79㎡(約68.0坪) |
| 建物面積 | 118.77㎡(固定資産課税台帳より) |
| 地目 | 宅地 |
| 交通 | 丹海バス「犀川橋」バス停より 車で10分 |
宮津市の北端の山中に位置している集落にある、大正6年築の古民家です。平成5年に購入された現所有者が、これまでリフォームなどを施してきました。築年数が100年を超えているため、相応に歪みや劣化があり、大規模な改修工事等が必要になる可能性がありますので、ご注意ください。
物件詳細情報
| 取引態様 | 仲介 | 現況 | 空き家(年に数回の利用あり) |
|---|---|---|---|
| 土地権利 | 所有権 | 引渡可能年月 | 要相談 |
| 地勢 | 平坦(擁壁上) | 引渡条件 | 現状有姿 |
| 私道負担 | なし | 接道状況 | 東側:宮津市道に接道、北側:里道に接道 |
| 建物構造 | 木造瓦葺平家建 | 間口 | 約22m |
| 建物面積 | 118.77㎡(固定資産課税台帳より) | 駐車場 | 南東側に1台程度 |
| 建築年月 | 大正6年(固定資産課税台帳より) | 上水道 | 引込み済み |
| 都市計画 | 区域内 | 下水道 | 汲み取り(浄化槽エリア) |
| 用途地域 | 指定なし | 給湯 | 灯油給湯器(現状、壊れています) |
| 交通 | 丹海バス「犀川橋」バス停より 車で10分 | その他設備 | 特になし |
| 建ぺい率 | 60% | その他施設負担金 | 特になし |
| 容積率 | 200% | 備考 | ・家屋の歪みがあり、和室の一部の床が下がっていたり、灯油ボイラーが壊れています。大規模な修繕が必要になる可能性が高いです。 ・公図が混乱しているエリアとなり、敷地境界の確定などは、かなり難しいです。 |
| 学区 | 府中小学校、橋立中学校 | 情報更新日 | 2026年02月13日 |
| その他の制限 | 特になし | 次回更新予定日 | 2026年02月27日 |
| 特記事項 | ・土砂災害警戒区域:地すべり に該当しています。 ・京都府建築基準法施行条例 第6条(崖に近接する建築物)により、再建築時に制限がかかる可能性があります。 |
地図
この物件にご興味のある方は






















































































